Beijing Wanjinlong Color-coated Steel Products Co., Ltd 中文版 | English| монгол хэл
  Index About us
Profile
Certification
Organization
Culture
Equipments
Prefab house series
Family economic house series
T modular camping house series
K modular camping house series
Container house series
Sentry box series
Light steel villa series
New building panel series
Color steel sheet series
Polyurethane sandwich panels
Rockwool sandwich panels
Glasswool sandwich panels
Polystyrene sandwich panels
Composite floor slabs
Accessory series
Steel structure series
Steel structure series
Grid structure series
C/Z Purlins series
Steel structure joints
Engineering inspection
Project Cases
Prefab houses cases
Steel structure cases
Cooperation Contact us
 
Products list
   
Family economic house
T modular camping house
K modular camping house
Container house
Sentry box
Light steel villa
 
Index > K modular camping house
  K modular camping house
K modular camping house
K Mobile Modular Homes
Menu: Details Block Diagram Ground based Disassembly ground
          Technical parameters Reference Room Appearance instance Indoor instance

Details

1,Wanjinlong multi- storey  is a modular house which width and length can be extended by adding number of 1820mm .

2, The heat insulated material can be EPS,PU or Rock wool.

3, The flooring system is concrete foundation.

4, All the components are standard and prefabricated with the advantage of assembling and disassembling easily.

5, Waterproof design of galvanized structure, fireproof and heat insulation material ensure the house to resist heavy wind load of 0.5KN/m2 and 7 degree seismic intensity.

6, The life span of the house is 15-20 years.

Block Diagram

 

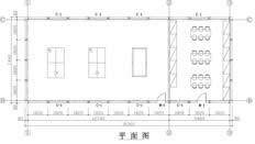
The two layer

 
Two-story house building plans

 

Three housing building plans

Ground-based

Disassembly ground

 

Technical parameters
ordinal Master item Breakdown Monolayer (3K1-50) econd floor (3K2-50) Three (3k3-50)
1 Standard Width 3K+160 (K modulo1K=1820mm)
2 Length nK+160(n=4,5,640) nK+160(n=4,5,640)
3 Wall 3P1P=950mm 6P1P=950mm 9P1P=950mm
4 Corridor width / 1100mm
5 Interior clear 2685mm
Without ceiling size
Layer2425mm
Layer2685mm
(Without ceiling size)
Layer2425mm
Layer2425mm
Three2685mm
(Without ceiling size)
6 Design Parameters Roof live load 50kg/ O
7 FloorCorridor live load / 200kg/ O
8 Wind load 0.45KN/ O(China Standard) 0.35KN/ O(China Standard)
9 Seismic intensity 7 Degrees
10 Structure portion Ground beam C80 type steel
11 Column DoubleC80 DoubleC80
A layer of column3*C80 type steel
12 Floor beam / Trussed girder (C80 type steel welding)
13 Floor beam / C60 type steel
14 Roof beams Herringbone Truss C60 type steel welding
15 Roof purlins C60 type steel
16 Stairs / C60 type steel weldingStepping using2.5mm,2.5mmThick embossed steel
17 Walk boards / 2.5mmThick embossed steel
18 Preservative treatment Exposed components: anti-rust paint + paint, non-exposed components: anti-rust paint
(Note: the exposed components including columns, corridors member, awning bracket, the rest of the non-exposed member)
19 Retaining part Wallboard 50mm double-sided color steel sandwich panel, the core material: rock wool
20 Roof panels 50mm corrugated double-sided color steel sandwich panel, the core material: rock wool
21 Floor / 15mm Plywood
22 Door Steel frame composite door, the specifications for the 960mm*2030mm, the core material: glass cotton
23 Window / PVC sliding window, specifications for the 1740mm * 950mm
24 Awning 50mm corrugated double-sided color steel sandwich panel, the core material: rock wool
25 Optional configuration Ceiling Gypsum board ceiling Mineral wool acoustic board ceiling1
26 Window The steel sash, specifications for 1740mm*950 mm, red, blue or white;
27 Door Steel double door, the specifications for the 1740mm*2030mm, red, blue or white;
28 ElectricalWater supply and drainage Program will provideDesign Construction

Reference Room

Office

Lifestyle
Dormitory
Residential

Outdoor View

     
     

Indoor View

       
       

Index | About Us | Prefab house series | New building panel series |Steel structure series | Project Cases | Cooperation | Contact Us

Address: No.2 LiErSi Industrial Park, Zhangjiawan Town, Tongzhou District, Beijing, China
Tel:+86-10-61509657    +86-10-61509652   E-mail:duo@wjlcg.com
 Copyright©2010  Beijing Wanjinlong Color-coated Steel Products Co., Ltd.  All  Rights Reserved!